


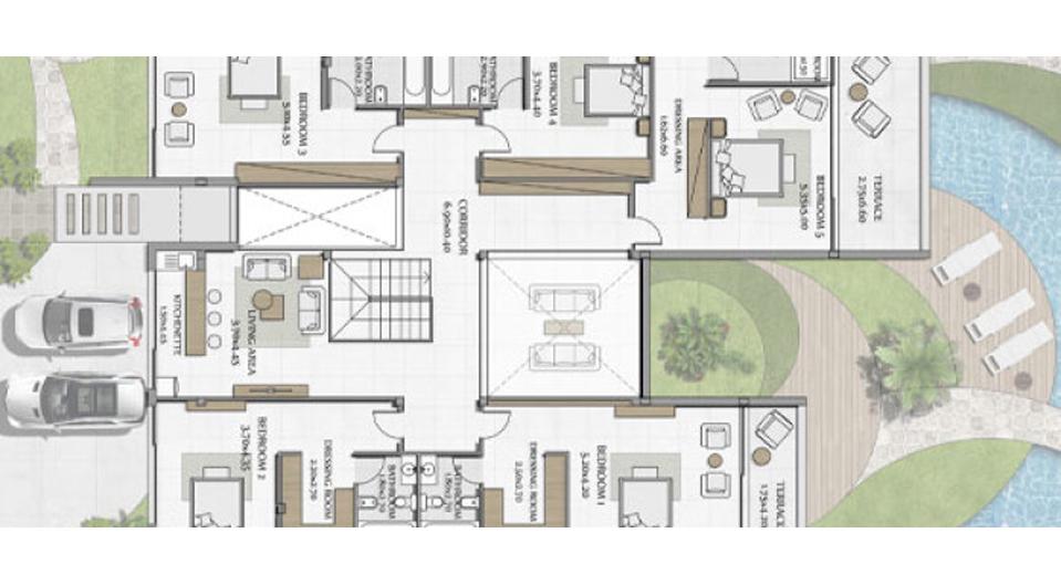
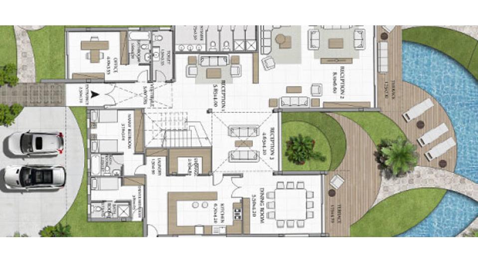
Unit description
Unit details
Basic Information
- Unit Name:
- Villa Type 2
Property Information
- Unit Usage:
- Residential
- Country:
- Egypt
- Unit For:
- Sell
- Finishing:
- Core & Shell
- Property Type:
- Villa
- City:
- North Coast
- District:
- North Coast
- Created at:
- 2018-07-15 20:05:10
